切换到宽版
  • 32阅读
  • 2回复

[奇观]【青年建筑】2025年度最佳:零售/旗舰店空间&餐饮空间名单公布<3//长沙星沙产业基地自贸总部大楼 / 以靠建筑[53P] [复制链接]

上一主题 下一主题
在线jjybzxw

UID: 551814

 

发帖
229399
金币
756994
道行
2006
原创
2455
奖券
3420
斑龄
43
道券
1516
获奖
0
座驾
设备
摄影级
在线时间: 48937(小时)
注册时间: 2008-10-01
最后登录: 2026-02-25
只看楼主 倒序阅读 使用道具 楼主  发表于: 前天 10:06
— 本帖被 xgch 执行加亮操作(2026-02-23) —
【青年建筑】2025年度最佳:零售/旗舰店空间&餐饮空间名单公布<3[30P]





摄影:©张超
项目完整介绍可点击下方青年建筑文章链接:
北京不忿的当代茶室
不忿工作室

在北京798艺术区的一隅,不忿工作室设计的茶亭与社交空间以“轻盈悬停”的姿态介入这片后工业遗存之地。建筑巧妙地通过材质的真实表达——手工砖、水泥、黄色水磨石等——在粗粝中融入温润触感。核心大开窗模糊了内外界限,使室内空间自然延伸至街角庭院,形成开放而流动的城市生活舞台。悬挂的金属格栅天花散射柔光,使空间在夜晚如灯塔般静静发光,邀请城市行者驻足对话。




摄影:©ObjectLens
项目完整介绍可点击下方青年建筑文章链接:
山野咖啡 · BAC店
杭州观堂室内设计有限公司

山野 BAC 店位于杭州转塘 BAC 艺术社区,由观堂设计主创,以“庇护所”为概念,将登山露营的安全感融入空间。设计延续 BAC 水泥与金属肌理,融入木、石、皮、纸等自然材质,紫铜屋檐随时间氧化,折窗模糊室内外边界,吧台由和纸艺术家畑野渡现场创作,呈现群山意境。室内动线围绕“庇护所”展开,融合户外美学与质朴工艺,营造沉浸式山野氛围。店内同时展出荒川尚也、刘江、王珏良等艺术家作品,艺术与咖啡在此交融。




空间摄影:黑水
项目完整介绍可点击下方青年建筑文章链接:
杭州皮氮咖啡
新秩序空间设计

在写字楼的效率漩涡中,皮氮咖啡与新秩序空间设计共同打造了一处精神缓冲带:它不只是咖啡补给站,更是逃离“效率至上”的心理庇护所。设计回避主题与符号,强调材料自身的表达与时间性的沉淀——削弱造型、克制表达,让空间在暧昧中流露松弛。在这里,吊灯比例被轻微扰动,壁灯模糊室内外界限,家具与灯具一体化处理,感知替代视觉。空间不讲故事,却自成语言,让人在每一次停驻中,获得对抗确定性的自由。





室内摄影:稳摄影 WEN studio
项目完整介绍可点击下方青年建筑文章链接:
跑马场三明治上海西岸梦中心店
季意空间设计

项目位于上海西岸梦中心,由季意设计操刀,跑马场三明治品牌在此打造出一个贯穿“日咖夜酒”与“三明治主场”的双空间叙事。原址为上海水泥厂筒仓,其六个锥形混凝土储料桶成为改造核心,转化为“咖啡与酒饮的制造装置”,营造出沉浸式复古场景。中央吧台与围合结构、下沉图腾与发光圆环交织出强烈仪式感,材质与灯光共同完成从清晨到夜晚的场景切换。主门店则以几何形态呼应筒仓语汇,在品牌精神、空间美学与工业遗产之间完成一次精准而富张力的表达。




摄影©ICYWORKS
项目完整介绍可点击下方青年建筑文章链接:
丽水千年古堰的宋亭茶饮
杭州时上建筑空间设计事务所

“驻85”项目位于瓯江之畔,以“宋式当代”为基调,设计师将一层改造为贯穿早餐厅、咖啡酒吧与茶饮包厢的沿江休闲带。建筑整体横向舒展,落地玻璃界面引入自然山水,模糊室内外界限。外部灰空间转译为可坐、可行、可观的阶梯式观演台,强化开放性;内部则以实木与浅色系构建松弛氛围,茶饮区以可开可合的灵活移门营造“借景”包厢,展现宋代园林意境;咖啡吧作为中轴连接三栋建筑,串联多重功能区。空间在当代表达中重塑东方美学,于慢节奏生活中构建起江岸共享的生活画卷。




项目摄影:瀚墨视觉-壹高
========================================================================================================================================

长沙星沙产业基地自贸总部大楼 / 以靠建筑[23P]


长沙经开区,开元东路与双塘路交汇的这片城区,肌理由标准厂房、物流仓库与产业配套设施编织而成。视野开阔,天际线在厂房屋顶的韵律中展开;路网遵循效率的逻辑,却也不乏因地势与现有地块而形成的微妙转折。在这片功能导向明确的场域,星沙产业基地自贸总部大楼的诞生,怀抱着一种超越单纯容纳办公的愿望:它意图为这片区域建立一种可被感知的秩序,提供一个具有精神凝聚力的标识,并植入一份对“人”的细致关怀。在严苛的50米限高下,这个愿望并未收缩,反而催生了一种清醒的自觉——将限制视为创作的前提,在有限的体积内,经营无限的空间与视觉关系。


01.
城市巨构:一种锚固于大地的存在方式
面对开阔却失之个性的产业园区景观,建筑首先需要确立自身清晰的存在。我们选择了一种近乎 “城市巨构”(Megastructure)的设计姿态。这一概念并非我们的发明,它深深植根于上世纪六七十年代的建筑先锋思潮。当时,面对城市的急速扩张与功能混杂,以英国“建筑电讯”(Archigram)小组、日本“新陈代谢派”(Metabolism)为代表的建筑师们,构想出一种未来主义图景:建筑不再是孤立的物体,而是一个庞大的、综合的、可生长甚至可移动的复杂系统,其本身即是一座微缩城市。雷姆·库哈斯(Rem Koolhaas)后来在其著作《癫狂的纽约》(Delirious New York)中,将曼哈顿的摩天楼群视为一种现实存在的“巨构”,它们以单一的、纪念碑式的体量,内部却包裹着高度密集且多元的城市生活。



星沙总部大楼的设计,可以视为对这一经典命题的一次回应。由于限高和容积率的需求。我们必须在紧贴红线、最大化利用场地,建筑呈现出一个坚实、完整的不等边四边体量。它没有选择碎片化或消隐的姿态,反而以一种纯粹的几何肯定性,沉稳地锚固在街角。在周边尺度巨大却往往形式失语的工业建筑群中,这种完整性与体量感,本身即成为一种沉静的宣言。它不再是一个背景,而是一个具有强大存在感的基准点,一个能让城市目光得以聚焦的“物”。这并非为了纪念性的宏大,而是为了在纷杂的肌理中,提供一种清晰可辨的场所坐标。

▲轴测图
02.
打开城市之窗:与城市互看的视觉机制
如果坚实的体量是建筑对外的“定”,那么体量上四角被精心切削出的巨大开口,则是建筑向城市发出的主动“邀请”。我们称这些开口为“城市之窗”。它们绝非普通窗户的放大,而是建筑尺度上的一次战略性空间操作,是体量中有意识的“留白”。

这些“窗”首先解放了建筑自身。它们削切了完整块体可能带来的厚重感,让光与风得以进入,建筑在视觉上变得轻盈而富有张力。但更重要的,是它们重新架构了建筑与城市的观看关系。每一个“窗”都是一个经过精密计算的巨型取景框,分别朝向一个特定的城市方向打开。远方的山峦轮廓、街道上的流动景观、更广阔的天际线,这些原本与建筑内部无关的风景,被主动地“框取”并“借”入室内,成为办公空间中流动的立体壁画。与此同时,从城市街道的不同角度望去,这些通透的巨窗也隐约透出内部的人影、灯光与活动,建筑内部的生机因而得以向外示现。


这便形成了一种“看”与“被看”的持续互动。它暗含了传统园林中“借景”的智慧,但以现代建筑的语言,在宏观的城市尺度上重新演绎。建筑不再是封闭的孤岛,而是通过这几个深刻的“景框”,与城市进行着动态的视觉对话,成为城市风景的观看者与组织者,同时也成为被观看的风景本身。
▲轴测图
03.
合院与空中庭院:内核的呼吸与活力的生发
在外部以“巨构”确立存在感,以“巨窗”实现对话之后,建筑的内向一面,则关乎如何为使用者营造宜人、健康且激发活力的栖居环境,我们在建筑的核心,嵌入了一个与外部轮廓呼应的内庭院,它将充沛的阳光、新鲜空气引入,也让地面层的商业空间获得了宝贵的“呼吸感”与视觉纵深感。

庭院的运用进一步向垂直维度拓展,结合“城市之窗”的切削,我们在不同楼层创造了多个大小、朝向各异的空中庭院。这些地方绝非交通的剩余空间,而是被刻意设计、鼓励停留的“空中客厅”。在此工作的人可以在办公间隙来此处小憩或交谈,感受到的不仅是穿庭而过的微风,还有从“城市之窗”所获得的一幅幅动态画卷——或是城市街景,或是远山如黛。自然、光线、视野与偶然发生的社交,在这里被立体地编织进日常的工作体验之中。这些“院”与“台”,极大地软化了标准办公空间容易产生的刻板与疏离感,将人文的关怀与对现代办公模式中非正式交流的愿望植根于空间的体验之中。

在东北角,为顺应道路走向而形成的锐角体量,我们通过一道干净的竖向切割将其化解,并顺势将切割后的体块做层层退台处理。这么做的好处是在微观上柔化了建筑轮廓,避免了生硬的转角;在宏观上,则自然地生成了更多朝向东北方山景的室外露台,可视为“空中会客厅”系统的延伸。它是对场地边界的一种坦诚应答,也是将外部景观资源最大化利用的务实策略。此类细节,皆服务于整体设计理念的完成度。


结语
星沙产业基地自贸总部大楼以“巨构”的整合姿态回馈区域,以“景框”与城市的对话,以“院落”为核心滋养内在的活力,以“切削”与“退台”完成对场地与视线的具体关照。在五十米的高度限制下,它通过对水平方向延展、空间深度挖掘、视线精妙引导以及形体细节雕琢的综合经营,构建了一个丰富、立体且充满生机的微城市单元。


在强调功能与规模效率的语境中,我们依然努力追求一种具有几何诗意、清晰逻辑与人性尺度的形式;在速度至上的环境中,我们依然可以悉心经营一份看风景的心情、一次偶遇的契机,以及一处让人心安并乐于停留的角落。这座大楼不仅是一栋办公楼,更是一个试图以清晰的建筑语言、开放的场所精神与细腻的人文温度,为星沙这片产业热土,贡献一份沉稳、现代且充满活力的城市提案。


设计图纸

▲分析图
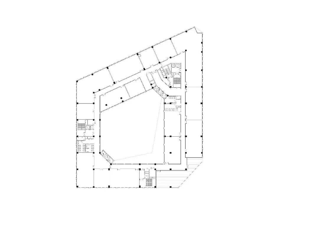
▲场地平面图


▲个别楼层平面图


▲立面图
完整项目信息
项目名称:星沙产业基地自贸总部大楼
项目类型:建筑
项目地点:湖南长沙
设计单位:以靠建筑 / Leeko Architects
主创建筑师:李以靠
建筑设计团队:高雪莹、潘昊伽、刘洁秋、王博、施瞿、杨滨瑞、陈自立、李汶翰、李敏言、苏羽茜、郑康立/ 以靠建筑Leeko Architects
设计时间:2021-2023
建设时间:2023-2025
建筑面积:19695平方米
摄影:章勇 / 章鱼见筑
1条评分金币+35
xgch 金币 +35 辛苦了,感谢您无私奉献的精神! 前天 22:24
山庄提示: 道行不够,道券不够?---☆点此充值☆
 
在线jjybzxw

UID: 551814


发帖
229399
金币
756994
道行
2006
原创
2455
奖券
3420
斑龄
43
道券
1516
获奖
0
座驾
设备
摄影级
在线时间: 48937(小时)
注册时间: 2008-10-01
最后登录: 2026-02-25
只看该作者 沙发  发表于: 前天 10:14
2025 年度建筑佳作:零售、餐饮与办公空间的多元探索
【青年建筑】2025 年度最佳零售/旗舰店空间、餐饮空间名单持续揭晓,同时长沙星沙产业基地自贸总部大楼这一办公建筑项目也格外引人注目。这些项目在各自领域展现出独特的设计理念与创新实践,为城市空间注入了新的活力与魅力。
零售与餐饮空间:创意融合,体验升级
北京不忿的当代茶室:后工业遗存中的轻盈悬停
不忿工作室在北京 798 艺术区打造的茶亭与社交空间,以“轻盈悬停”的姿态巧妙介入这片后工业遗存之地。建筑通过手工砖、水泥、黄色水磨石等材质的真实表达,在粗粝中融入温润触感。核心大开窗模糊了内外界限,使室内空间自然延伸至街角庭院,形成开放而流动的城市生活舞台。悬挂的金属格栅天花散射柔光,让空间在夜晚如灯塔般静静发光,邀请城市行者驻足对话,为人们提供了一个在繁忙都市中放松身心、交流互动的独特场所。
山野咖啡・BAC 店:艺术社区里的山野庇护所
位于杭州转塘 BAC 艺术社区的山野 BAC 店,由观堂设计主创,以“庇护所”为概念,将登山露营的安全感融入空间。设计延续 BAC 水泥与金属肌理,融入木、石、皮、纸等自然材质,紫铜屋檐随时间氧化,折窗模糊室内外边界,吧台由和纸艺术家畑野渡现场创作,呈现群山意境。室内动线围绕“庇护所”展开,融合户外美学与质朴工艺,营造出沉浸式山野氛围。同时,店内展出荒川尚也、刘江、王珏良等艺术家作品,使艺术与咖啡在此完美交融,为顾客带来独特的消费体验。
杭州皮氮咖啡:写字楼里的精神缓冲带
在写字楼的效率漩涡中,皮氮咖啡与新秩序空间设计共同打造了一处精神缓冲带。这里不只是咖啡补给站,更是逃离“效率至上”的心理庇护所。设计回避主题与符号,强调材料自身的表达与时间性的沉淀,削弱造型、克制表达,让空间在暧昧中流露松弛。吊灯比例被轻微扰动,壁灯模糊室内外界限,家具与灯具一体化处理,感知替代视觉。空间不讲故事,却自成语言,让人在每一次停驻中,获得对抗确定性的自由,为忙碌的上班族提供了一个放松身心的角落。
跑马场三明治上海西岸梦中心店:工业遗产中的双空间叙事
跑马场三明治上海西岸梦中心店由季意设计操刀,项目原址为上海水泥厂筒仓,其六个锥形混凝土储料桶成为改造核心,转化为“咖啡与酒饮的制造装置”,营造出沉浸式复古场景。中央吧台与围合结构、下沉图腾与发光圆环交织出强烈仪式感,材质与灯光共同完成从清晨到夜晚的场景切换。主门店则以几何形态呼应筒仓语汇,在品牌精神、空间美学与工业遗产之间完成一次精准而富张力的表达,为顾客带来了独特的消费体验,同时也实现了对工业遗产的创新利用。
丽水千年古堰的宋亭茶饮:江岸共享的宋式生活画卷
“驻 85”项目位于瓯江之畔,以“宋式当代”为基调,设计师将一层改造为贯穿早餐厅、咖啡酒吧与茶饮包厢的沿江休闲带。建筑整体横向舒展,落地玻璃界面引入自然山水,模糊室内外界限。外部灰空间转译为可坐、可行、可观的阶梯式观演台,强化开放性;内部则以实木与浅色系构建松弛氛围,茶饮区以可开可合的灵活移门营造“借景”包厢,展现宋代园林意境;咖啡吧作为中轴连接三栋建筑,串联多重功能区。空间在当代表达中重塑东方美学,于慢节奏生活中构建起江岸共享的生活画卷,让人们在享受美食的同时,也能感受到浓厚的文化氛围。
办公空间:突破限制,构建活力微城市
长沙星沙产业基地自贸总部大楼:有限高度下的无限空间经营
在长沙经开区,以靠建筑设计的星沙产业基地自贸总部大楼在严苛的 50 米限高下,展现出独特的设计智慧。面对开阔却失之个性的产业园区景观,建筑采用“城市巨构”的设计姿态,呈现出一个坚实、完整的不等边四边体量,以纯粹的几何肯定性沉稳地锚固在街角,成为具有强大存在感的基准点,为城市提供了清晰可辨的场所坐标。

建筑体量上四角被精心切削出的巨大开口——“城市之窗”,解放了建筑自身,削切了厚重感,让光与风得以进入,同时在宏观城市尺度上重新架构了建筑与城市的观看关系。每个“窗”都是巨型取景框,将城市风景“框取”并“借”入室内,成为办公空间中流动的立体壁画;而从城市街道望去,建筑内部的生机也得以向外示现,形成“看”与“被看”的持续互动。

在建筑核心嵌入的内庭院,将阳光、新鲜空气引入,让地面层商业空间获得“呼吸感”与视觉纵深感。不同楼层创造的多个空中庭院,成为鼓励停留的“空中客厅”,极大软化了标准办公空间的刻板与疏离感。东北角顺应道路走向的锐角体量,通过竖向切割和层层退台处理,柔化了建筑轮廓,生成更多朝向东北方山景的室外露台,是对场地边界的坦诚应答和景观资源最大化利用的务实策略。

星沙产业基地自贸总部大楼通过对水平方向延展、空间深度挖掘、视线精妙引导以及形体细节雕琢的综合经营,构建了一个丰富、立体且充满生机的微城市单元。它不仅是一栋办公楼,更是一个以清晰的建筑语言、开放的场所精神与细腻的人文温度,为星沙产业热土贡献的沉稳、现代且充满活力的城市提案。

2025 年度这些优秀的零售、餐饮和办公空间项目,以其创新的设计理念和卓越的实践成果,为我们展示了建筑与城市、生活的紧密联系。它们不仅满足了人们的功能需求,更在精神层面给予人们愉悦的体验,成为城市发展中不可或缺的一部分。相信在未来,会有更多优秀的建筑作品涌现,为我们的生活带来更多的美好与惊喜。

1条评分金币+6
xgch 金币 +6 回复认真,加分鼓励 前天 22:24
如何不发帖就快速得到金币道行
 
在线姜谷粉丝

UID: 1569053

精华: 2
级别: 玉清道君

发帖
173155
金币
545843
道行
20030
原创
768
奖券
398
斑龄
0
道券
30
获奖
0
座驾
设备
摄影级
在线时间: 21518(小时)
注册时间: 2012-06-21
最后登录: 2026-02-25
只看该作者 板凳  发表于: 前天 16:25
京东MALL、名创优品MINISOLAND旗舰店、上海遇外滩餐厅等项目成为2025年度零售与餐饮空间创新的代表作,分别在全渠道融合、IP沉浸式体验和高端餐饮空间设计方面脱颖而出。

📍 背景
2025年,随着消费场景向“体验化、情绪价值驱动”转型,零售与餐饮空间不再只是交易场所,而是品牌文化输出、用户情感连接的重要载体。多个国际与国内权威榜单聚焦于空间创新力、场景融合度与商业转化能力,评选出一批具有标杆意义的旗舰店与餐厅空间。

以下为综合行业奖项与市场反响梳理出的重点名单及特点分析:

🔍 零售与旗舰店空间创新代表
品牌/项目    核心亮点    适配人群
京东MALL    全渠道深度融合,20万+商品覆盖,电竞区/洗护体验等主题场景    科技爱好者、家庭置家消费者
名创优品 MINISOLAND    IP内容为核心,沉浸式互动空间,开业9个月销售额破亿    Z世代、粉丝群体、年轻潮流客群
W.Management华南超级1号店    超3000㎡空间,融合中世纪建筑美学与多风格服饰潮流    时尚先锋、区域高消费人群
京东MALL通过“线下体验+线上履约”模式,实现服务标准统一,构建安心购物闭环。
名创优品MINISOLAND荣获MAPIC 2025最佳新店概念奖,被评审团称为“粉丝社区式体验场所”。
W.Management在广州天河开设的超级旗舰店,以唐顿美学为灵感,打造零售与文化交融的新地标。
🍽️ 餐饮空间设计标杆案例
餐厅名称    所在城市    设计特色
遇外滩    上海    闽南地域文化转译,材料与工艺创新应用
福和慧    上海    极简美学与植物料理结合,营造恬谧自然飨宴
漾·YOUNG设计师酒店(含餐饮)    桂林    复合餐饮体验+艺术空间,映射多元放松方式
太原LiuLiu酒店(餐饮空间)    太原    吉祥文化与自然疗愈融合,空间带有被在乎的温度
上海“遇外滩”跃升至亚洲50最佳餐厅第14位,成为中国内地排名最高的餐厅。
“福和慧”位列亚洲第15位,延续其在高端素食领域的领先地位。
多个上榜餐厅由知名设计机构操刀,如陈林山水、花万里、成都蜂鸟等,体现“空间即品牌”的趋势

✅ 结论
2025年度最具影响力的零售与餐饮空间共同特点是:以IP或文化为核心,打造强体验、高互动、可传播的消费场景。

若你追求科技感与一站式家电购物,京东MALL是首选;
若你关注潮流文化与情绪价值消费,名创优品MINISOLAND值得打卡;
若你偏爱高端餐饮与空间美学融合,上海“遇外滩”“福和慧”等是标杆之选。
长沙星沙产业基地自贸总部大楼虽未出现在上述榜单中,但长沙整体作为新消费策源地,孕育了文和友、茶颜悦色等现象级品牌,未来有望诞生更多创新空间案例
1条评分金币+6
xgch 金币 +6 回复认真,加分鼓励 前天 22:24
如何不发帖就快速得到金币道行
 
我有我可以
快速回复
限120 字节
认真回复加分,灌水扣分~
 
上一个 下一个