切换到宽版
  • 8阅读
  • 1回复

[奇观]浙江来野山川里 / 偏离设计[45P] [复制链接]

上一主题 下一主题
在线jjybzxw

UID: 551814

 

发帖
208321
金币
582725
道行
2005
原创
2437
奖券
3180
斑龄
40
道券
1167
获奖
0
座驾
设备
摄影级
在线时间: 45872(小时)
注册时间: 2008-10-01
最后登录: 2025-12-05
只看楼主 倒序阅读 使用道具 楼主  发表于: 6小时前



屋内是昏暗的,透过暖色的灯光,散发着慵懒的气息,雨水打在黑色的石子路面,带着些许声响,人穿行于廊下,坐望处,雨渐小,远山泛起了雾。。。
关于场所的构思

项目地处于浙江安吉县山川乡,漫山的竹林与连绵的山体构成这一区块独特的自然环境。

场地所在区域

建筑用地
车子驶出隧道,经由山脚下的一个村庄盘山而上,远山随着海拔的上升开始显现,路过半山腰的一个拐弯处,整片竹林置于眼前,风吹竹林带来沙沙声响,场地的选址正处于这一拐弯处的洼地。


场地北面为一条穿山而过的行车道,南面为一条通往村里养鸡场的小路,下面为一片农田,像是很久没打理,整个处于一种无序混乱的状态,建设用地刚好为两条路中间的一片竹林地。


从人的视角望去,东面,西面与北面均为山坡,南面有较好的景观面,但现有的竹林遮蔽下面农田的同时,也遮蔽了远山的景观,使视野受到局限。好在地块南北高差近7米,利用高差,在高处平整出基础地块,保留下方竹林,构建以远山近林为主体景观的旅宿度假空间,设计也以此作为依据展开。



建筑主体为3栋10米*13米的方形体块,利用场地东西近60米长的条件,建筑横向水平拉开,通过连廊,串起各个功能区块,高度上的错层与一个巨大的倾斜屋面,构筑起建筑的基本视觉形象。空间上,由西往东匀质铺开,通过层层递进的方式,延长整个游进路线。

行车道以下3.4米作为建筑基础标高,将接待,书吧,茶室,餐厅这些公共空间置于底层,以半地下室的状态呈现,建筑中庭与南面巨大的开窗消减条形空间带来的冗长感,将景观最大限度的引入建筑内部,3米悬挑长廊作为应对山区多雨气候的同时建立空间内外的模糊性与灵活性,鼓励人们自由穿梭分享自身的感受。



整个建筑在作为度假产品这一功能属性下,以3.2米的单层高度作为基本标高单元,在一个大体量的建筑空间内,保证尺度是宜人的,舒适的。材料上以木材,石材,灰泥涂料等自然质感材质为主,避免材料的过渡使用,深色调的控制也使整个空间内部呈现一种内敛的状态。压低空间内部的明度目的是将视线更聚焦于外部的风景。

外立面深色灰泥的拉毛处理,几何化的建筑形态,明确场所的此时此地,同时强化建筑作为物质这一特性的稳定性。


建筑前方预留近11米宽的戏水池,留建筑与景观一个观望的距离,场所在整片竹林中有了一个向心力,也给民宿提供一个巨大的户外活动场地,抵达这个动词有了具象的画面。







将客房置于上部,三栋建筑各自独立,减少房间因密度而带来的干扰。高度的提升使景观有了更好的呈现。应对度假类空间的特性,我们尽量保证内部空间的简洁性,舒适性,同时避免过渡化设计所带来的视觉干扰,设置每个窗户的朝向,给房间提供最佳的观景视野。












此案是我们尝试将建筑即独立于环境又相互渗透的一次尝试,通过解构建筑的局部,构建一个由物质、氛围、以及使用者空间体验为核心的旅宿度假场所。

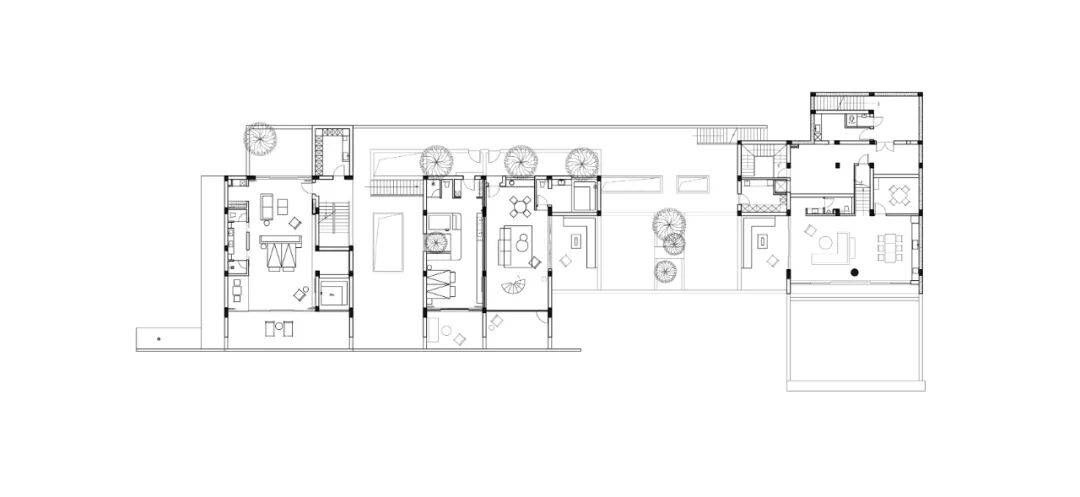
项目图纸

1层

-1层

2层
3层

场地总平

剖立面图
墙身大样
设计手稿




项目信息
项目名称 | 来野 . 山川里
项目业主 | 湖州来野酒店管理有限公司
设计公司 | 偏离设计
设计时间 | 8/2023---12/2023
施工时间 | 3/2024---9/2025
主持设计 | 小岛、戚帅奇
设计团队 | 付冬冬、李明思、赵英凯、郑梦青
软装设计 | 潘昕欣、熊良洁
景观设计 | 又见设计
结构设计 | 飞鱼设计
项目面积 | 2000sqm
建筑工程 | 信辉建设工程有限公司
装饰工程 | 浙江拾叙装饰工程有限公司
景观工程 | 常春藤景观庭院
灯光设计 | 科尚照明
项目摄影 | 壹高(翰墨视觉),滑雪涛(直觉建筑空间摄影)
主要材料 | 老木板,水洗石,灰泥涂料
山庄提示: 道行不够,道券不够?---☆点此充值☆
 
在线jjybzxw

UID: 551814


发帖
208321
金币
582725
道行
2005
原创
2437
奖券
3180
斑龄
40
道券
1167
获奖
0
座驾
设备
摄影级
在线时间: 45872(小时)
注册时间: 2008-10-01
最后登录: 2025-12-05
只看该作者 沙发  发表于: 6小时前
来野·山川里:山野间的诗意旅宿度假空间
在浙江安吉县山川乡那漫山竹林与连绵山体交织的独特自然环境中,来野·山川里项目宛如一颗璀璨的明珠,巧妙地融合于自然,又以独特的建筑魅力脱颖而出,为旅人打造出一处远离喧嚣、静谧而舒适的旅宿度假之所。

选址:自然中的灵动洼地
项目选址于车子驶出隧道、盘山而上时的一个拐弯处的洼地。此处,当整片竹林映入眼帘,风吹竹林沙沙作响,瞬间让人感受到大自然的生机与灵动。场地北面是穿山而过的行车道,南面是通往村里养鸡场的小路,下方是一片无序混乱的农田,建设用地则处于两条路中间的一片竹林地。从人的视角看,东、西、北面均为山坡,南面虽有较好景观面,但现有竹林遮蔽了远山景观,视野受限。不过,地块南北近7米的高差成为了设计的契机,设计师巧妙利用这一高差,在高处平整出基础地块,保留下方竹林,为构建以远山近林为主体景观的旅宿度假空间奠定了基础。

建筑布局:水平延展与空间递进
建筑主体由3栋10米*13米的方形体块构成,借助场地东西近60米长的优势,横向水平拉开,并通过连廊将各个功能区块串联起来。高度上的错层与一个巨大的倾斜屋面,构筑起建筑独特的基本视觉形象。空间上,从西往东匀质铺开,采用层层递进的方式,延长了整个游进路线,让人们在行走过程中不断有新的发现和体验。

功能分区:合理布局与景观引入
底层公共空间
行车道以下3.4米作为建筑基础标高,接待、书吧、茶室、餐厅等公共空间被置于底层,以半地下室的状态呈现。建筑中庭与南面巨大的开窗设计巧妙地消减了条形空间带来的冗长感,将外部景观最大限度地引入建筑内部,使人们在室内也能感受到自然的美好。3米悬挑长廊不仅是对山区多雨气候的应对之策,更建立了空间内外的模糊性与灵活性,鼓励人们自由穿梭,分享感受,增强了人与自然的互动。
上部客房空间
客房被置于上部,三栋建筑各自独立,减少了房间因密度而带来的干扰。高度的提升使得景观有了更好的呈现,每个房间都经过精心设计,通过合理设置窗户的朝向,为住客提供了最佳的观景视野。同时,为应对度假类空间的特性,内部空间尽量保证简洁性和舒适性,避免过渡化设计带来的视觉干扰,让住客能够全身心地放松身心,享受度假时光。

材料运用:自然质感与内敛氛围
在材料选择上,以木材、石材、灰泥涂料等自然质感材质为主,避免材料的过渡使用。深色调的控制使整个空间内部呈现一种内敛的状态,压低空间内部的明度,目的是将人们的视线更聚焦于外部的风景,让人们在享受室内舒适的同时,也能时刻感受到大自然的魅力。外立面深色灰泥的拉毛处理,几何化的建筑形态,不仅明确了场所的此时此地,还强化了建筑作为物质这一特性的稳定性。

景观设计:戏水与观望的和谐融合
建筑前方预留了近11米宽的戏水池,为建筑与景观之间留出了一个观望的距离。这个戏水池不仅使场所在整片竹林中有了一个向心力,成为整个区域的视觉中心,还为民宿提供了一个巨大的户外活动场地。住客可以在这里嬉戏玩水,享受欢乐时光,而“抵达”这个动作也因此有了具象的画面,增添了旅行的仪式感。

设计理念:独立与渗透的完美平衡
来野·山川里项目是一次将建筑独立于环境又相互渗透的大胆尝试。通过解构建筑的局部,设计师构建了一个以物质、氛围以及使用者空间体验为核心的旅宿度假场所。在这里,建筑不再是冰冷的物体,而是与自然融为一体,成为人们感受自然、放松身心的载体。

来野·山川里以其独特的选址、巧妙的建筑布局、合理的功能分区、自然的材料运用、和谐的景观设计以及创新的设计理念,成功打造出一个令人向往的旅宿度假空间。它不仅为人们提供了一个远离城市喧嚣的栖息之所,更让人们在与自然的亲密接触中,重新找回内心的宁静与平衡。相信在未来,来野·山川里将继续吸引着众多旅人前来,感受它的独特魅力。
如何不发帖就快速得到金币道行
 
快速回复
限120 字节
认真回复加分,灌水扣分~
 
上一个 下一个