切换到宽版
  • 5阅读
  • 1回复

[奇观]“自然经堂”,循环建造 - 云南朵木杦庄设计 / 平时建筑设计事务所[30P] [复制链接]

上一主题 下一主题
在线jjybzxw

UID: 551814

 

发帖
194442
金币
478343
道行
2004
原创
2431
奖券
3095
斑龄
39
道券
1134
获奖
0
座驾
设备
摄影级
在线时间: 43316(小时)
注册时间: 2008-10-01
最后登录: 2025-10-16
只看楼主 倒序阅读 使用道具 楼主  发表于: 10小时前


© 王剑峰
共享与共生
项目位于云南德钦县玉杰村,建筑师旨在通过此实践,尝试为中国藏区传统建筑演变为本土人文“酒庄”的方式与理念提供一种突破,并促使建造活动与建筑空间自然而然地产生一种地方性的社会价值。

▲项目鸟瞰© 王剑峰
场所位于海拔2720米的山顶,四周神山环绕,风景绝佳,但施工条件有限。设计以一栋历史藏宅为母体进行衍生、改造与修复。团队运用UE技术辅助方案研究,同时主创王剑峰驻守工地,融入生活,真实体验人与环境之间的依存关系,并利用当地熟悉的材料、工匠擅长的做法来构思与建造,而这种在地性的方式恰好为藏族村民提供了参与机遇和经济收入。从原场所格局中生长出来的新空间与老建筑共同构成了多维度的公共空间。

▲自主入口看新旧部分的重构© 王剑峰
面向大山,向外延伸的挑台以包容的方式,自然地成为酒庄与村社公民之间日常互动的共享平台,并转化为都市文化与藏地文化自觉交流的媒介;由牛圈改造成的下沉内院则自发地成为村民与游客共舞锅庄的小剧场;临崖而建的品酒室、空心砖墙、水面倒影与保留的老树在光和风的刻画下营造出诗意灵动的自然经堂;山上的鸟类开始在建筑的砖孔立面上做窝,逐渐将物质的立面养成生活的立面。建筑师希望整体酒庄真实地成为人与自然共生的叙事容器。


▲向外延伸面向大山的挑台© 王剑峰


▲牛圈改造而成的下沉内院兼锅庄舞小剧场© 王剑峰

▲临崖而建的苹果树院© 王剑峰


▲苹果树院细部© 王剑峰

▲品酒室外立面© 王剑峰
墙的时间对话,传达空间的情绪
珍视老建筑所承载的往昔记忆,以润物细无声的方式,悄然融入新的痕迹。延展旧建筑“白”的特征,以白墙的语言和秩序来整合新旧之间的关系。通过新、旧墙体之间的交织对话,重塑空间的层次。被保留的老界面的残破感与新界面的纯粹性所构成的时间肌理,随着阳光的角度和节气的交替而不断变化,由此传递着空间的情绪。


▲新旧墙体之间的交织对话© 王剑峰

▲新旧墙体构成的肌理与对话© 王剑峰
总体上,新的部分包裹着老的藏房,重构一幅平静而克制的白色群像;而不同年代、不同类型的材质又赋予其丰富性和时间感。


▲院落层次与环境的关系© 王剑峰
日常材料转译文化信仰,自然要素重构经堂意向
完整地保留藏宅中与生活文脉密不可分的经堂与香炉,只对其进行修缮清理和灯光设计。同时,以当地最朴拙的空心砖块转译藏族的经墙形制,并贯穿于新旧建筑之间。

▲对原有经堂修缮处理和灯光设计© 王剑峰

▲朴拙的空心砖块转译藏族经墙形制©王剑峰
“放空的经墙”把有形的经书化为无形。“空”反而蕴含了一切。穿透墙体的藏地光影与透过空洞所见的景象,本身就是一部活的经文;而光线的移动则赋予“经书”时间性与生命力。
在共享挑台的端头,将空心砖改为斜45°砌筑,则是对藏族吉祥图案“盘长”的建筑语言表达。

▲旧木棚改造的抽象的光影经书亭© 王剑峰
嵌套在墙体中的日常旧锅器,则隐含着唐卡中坛城所代表的深邃寓意。最普通的日常材料使崇高的信仰得以被最贴近生活的语言来表达,反而使人文精神回归现实本真。

▲嵌套在墙体中的日常旧锅器© 王剑峰
以旧物循环建构
在更新改造过程中,将老建筑中拆解下来的部分楼梯构建、门窗、地板、瓦片、原住民用过的灶具、农具、器具、家具等旧物材料进行身份转变,改变它们原本的功能,使其可持续地建构新建筑。集约造价的同时,也让往昔生活记忆的细节融入今天的空间场所。

▲老建筑底层粮仓改造的酒窖和工艺空间© 王剑峰

▲空间细部© 王剑峰
酒窖和工艺空间由老建筑底层的粮仓改造而成。老藏房的夯土墙特性与当地的气候特征,使工艺空间在不用设备的情况下能够保持稳定而适宜的酿造温度,这有效地减少了建筑能耗,保护了藏区珍贵的自然环境;同时,由保留的藏式土木体系所形成的宽敞空间,既是体现本土文化的酒窖,也是艺术化的策展空间。

▲品酒室内部细节© 王剑峰

▲改造而成的客房空间© 王剑峰

▲主入口处看酒庄夜景© 王剑峰

▲从二层廊道看酒庄夜景© 王剑峰

▲局部夜景© 王剑峰

▲村民与游客共舞锅庄© 米亚
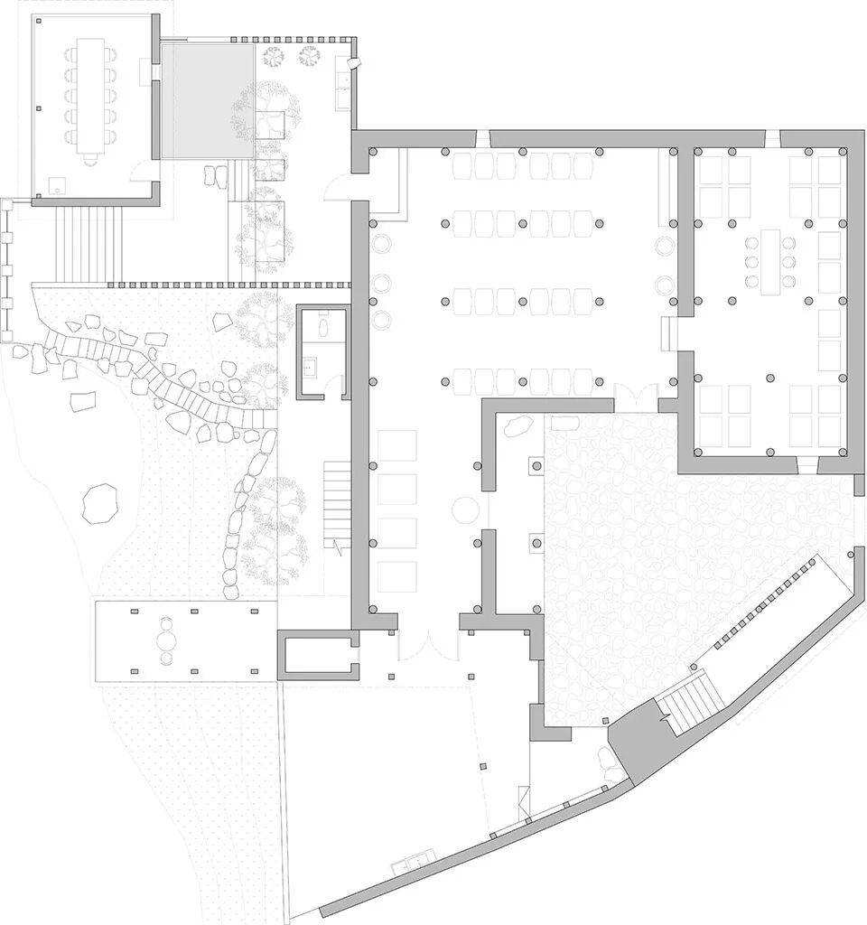
项目图纸
▲总平面图© PL-T平时建筑设计事务所

▲一层平面图© PL-T平时建筑设计事务所
▲二层平面图© PL-T平时建筑设计事务所
▲三层平面图© PL-T平时建筑设计事务所

▲剖面图© PL-T平时建筑设计事务所
项目名称:“自然经堂”, 循环建造 — 云南朵木杦庄
项目类型:改造(主要)/建筑
设计方:PL-T平时建筑设计事务所
项目设计:2024
完成年份:2025
设计团队:主持建筑师: 王剑峰.
主创设计团队:王剑峰,王婧,李飞.
UnrealEngine5引擎数字地编技术辅助设计团队:沃泰(VRTech)数字工作室.
项目地址:云南省德钦县玉杰村
建筑面积:970㎡
摄影版权:王剑峰,米亚
合作方:UnrealEngine5引擎数字地编技术团队:沃泰(VRTech)数字工作室 / 钢结构设计:凯鑫钢结构工程
客户:葡荷酒业(香格里拉)有限公司
材料:空心砖、木材、钢材、混凝土
山庄提示: 道行不够,道券不够?---☆点此充值☆
 
在线jjybzxw

UID: 551814


发帖
194442
金币
478343
道行
2004
原创
2431
奖券
3095
斑龄
39
道券
1134
获奖
0
座驾
设备
摄影级
在线时间: 43316(小时)
注册时间: 2008-10-01
最后登录: 2025-10-16
只看该作者 沙发  发表于: 10小时前
云南德钦县玉杰村“自然经堂”酒庄项目解析:传统建筑的再生与文化共生

项目背景与核心理念
位于云南德钦县玉杰村的“自然经堂”酒庄项目,是建筑师王剑峰及其团队PL-T平时建筑设计事务所的一次重要实践。该项目以海拔2720米山顶的一栋历史藏宅为母体,通过改造、修复与衍生,探索藏区传统建筑向“本土人文酒庄”转型的可能性。项目核心理念在于“共享与共生”——不仅指建筑空间的共享,更强调人与自然、传统与现代、本土文化与外来文化的共生关系。玉杰村本身作为德钦县践行“野奢型”乡村旅游的典范(参考[4]),其深厚的藏族文化底蕴和独特的自然环境为项目的实施提供了理想土壤。

设计策略与空间营造
1. 场地与在地性建造
项目选址于神山环绕的山顶,风景绝佳但施工条件受限。设计团队采用UE技术(Unreal Engine 5引擎数字地编技术)辅助方案研究,结合主创建筑师王剑峰长期驻守工地的真实体验,确保设计与实际环境的高度契合。建造过程中充分利用当地熟悉材料(空心砖、木材、石材)和工匠传统技艺,这不仅降低了成本,更为藏族村民提供了参与机会和经济收入,直接呼应了玉杰村“全民参与”的发展模式([4]中提及村民以土地入股、成立合作社等机制)。

2. 新旧共生的空间重构
- 多维度公共空间:新空间从原场所格局中生长出来,与老建筑共同构成丰富的公共空间。例如,面向大山的挑台成为酒庄与村社公民日常互动的共享平台,促进了都市文化与藏地文化的自觉交流。
- 牛圈改造的下沉内院:将废弃牛圈改造为下沉内院,自发成为村民与游客共舞锅庄的小剧场,激活了传统空间的当代活力。
- 临崖品酒室:临崖而建的品酒室通过空心砖墙、水面倒影与保留的老树,在光和风的作用下营造出诗意灵动的“自然经堂”。建筑立面的砖孔甚至成为鸟类筑巢之所,“物质的立面”逐渐转化为“生活的立面”,体现了人与自然的深度共生。

3. 墙的时间对话:新旧墙体的交织
设计珍视老建筑承载的记忆,以“白墙”语言整合新旧关系。保留的老界面残破感与新界面纯粹性形成强烈对比,构成富有时间肌理的空间。新旧墙体的交织对话,随阳光角度和节气交替而变化,传递出空间的情绪。整体上,新部分包裹老藏房,形成平静克制的白色群像,不同年代材质赋予其丰富性与时间感。

4. 文化信仰的转译:日常材料与经堂意向
- 经堂与香炉的保留:完整保留并修缮藏宅原有的经堂与香炉,仅进行灯光设计优化,延续核心文化信仰空间。
- 空心砖转译经墙形制:以当地朴拙的空心砖块转译藏族经墙形制,贯穿新旧建筑。“放空的经墙”将有形经书化为无形,“空”蕴含一切。穿透墙体的光影与空洞景象成为“活的经文”,光线移动赋予其时间性与生命力。
- “盘长”图案表达:在共享挑台端头,空心砖以斜45°砌筑,表达藏族吉祥图案“盘长”的建筑语言。
- 旧锅器隐喻坛城:嵌套在墙体中的日常旧锅器,隐含唐卡中“坛城”的深邃寓意,使崇高信仰以贴近生活的语言表达。

5. 旧物循环建构:记忆的延续
项目在更新改造中,将老建筑拆解下来的楼梯构件、门窗、地板、瓦片、灶具、农具等旧物材料进行功能转变,可持续建构新建筑。这不仅集约造价,更将往昔生活记忆细节融入新空间。例如:
- 老粮仓改造酒窖:底层粮仓改造为酒窖和工艺空间。老藏房夯土墙特性配合当地气候,在无设备情况下保持适宜酿造温度,减少能耗,保护自然环境。该空间既是酒窖,也是艺术化策展空间。
- 客房空间改造:通过对老建筑空间的重新划分和修缮,形成兼具传统韵味与现代舒适的客房。

技术应用与可持续性
- UE技术辅助设计:沃泰(VRTech)数字工作室运用Unreal Engine 5引擎进行数字地编技术辅助设计,提升了方案研究的精准性和可视化效果。
- 被动式节能设计:利用夯土墙保温性能和地形优势,实现自然通风采光,降低能源消耗。
- 材料循环利用:大量使用旧建筑材料,减少新建材消耗和废弃物产生,符合可持续发展理念。

社会价值与文化意义
1. 经济赋能:项目为当地村民提供了参与建造的机会和经济收入,契合玉杰村通过乡村旅游带动村民增收致富的目标([4]中提到2024年农村人均年纯收入达2.44万元)。
2. 文化传承:通过建筑语言转译藏族文化符号(经墙、盘长、坛城),并保留传统经堂、香炉等元素,使藏族文化得以活态传承。
3. 社区融合:共享挑台、锅庄舞小剧场等空间促进了村民与游客、外来文化与本土文化的交流互动,增强了社区凝聚力。
4. 生态共生:建筑尊重自然环境,利用地形和材料特性减少对生态的影响,并吸引鸟类栖息,实现了人与自然的和谐共生。

结语
“自然经堂”酒庄项目不仅是对一栋历史藏宅的成功改造,更是对藏区传统建筑如何在当代焕发新生的一次深刻探索。它通过“共享与共生”的理念,在空间营造、材料运用、文化表达等多个层面实现了传统与现代、本土与外界的有机融合。项目成功地将玉杰村的“野奢型”旅游定位([4])提升到了一个新的文化高度,使其不仅仅是一个旅游目的地,更成为一个承载记忆、促进交流、实现人与自然和谐共生的“叙事容器”。正如文中所述,建筑师希望整体酒庄真实地成为人与自然共生的叙事容器,这一目标在项目的每一个细节中都得到了充分体现。

如何不发帖就快速得到金币道行
 
快速回复
限120 字节
认真回复加分,灌水扣分~
 
上一个 下一个